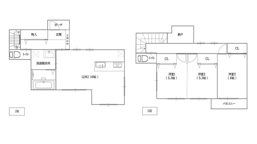
リフォーム住宅 カーポート 土地23.20坪 3LDK
- 価格
1,230万円
- 中古戸建
- 間取
3LDK
校区(鴨田小学校 西部中学校 )
|
- 所在地
|
- 高知県高知市 神田
|
- 交通
|
バス(船岡南団地バス 停歩5分) |
| 築年月 |
1984/10 |
構造 |
木造 |
| 階建 |
地上 2階 |
部屋階数 |
|
| 面積 |
86.22m² 土地 76.70m² |
駐車場 |
|
| 区画番号 | |
現況 |
空家 |
| 物件番号 |
3110 |
掲載期限日 |
2026/06/15 |
| 設備・条件 |
システムキッチン 食器洗い乾燥機 洗髪洗面化粧台 バス・トイレ別 温水洗浄便座 TVドアホン プロパンガス 公営水道 排水浄化槽 |
鴨田小学校エリア 建物内外リフォーム住宅 駐車2台可 土地33.23坪 4LDK
- 価格
1,869万円
- 中古戸建
- 間取
4LDK
校区(鴨田小学校 西部中学校 )
|
- 所在地
|
- 高知県高知市 神田
|
- 交通
|
- とさでん交通伊野線鴨部駅 徒歩32分
バス(船岡南団地バス 停歩3分) |
| 築年月 |
1995/11 |
構造 |
木造 |
| 階建 |
地上 2階 |
部屋階数 |
|
| 面積 |
92.74m² 土地 109.88m² |
建蔽率/容積率 |
60% / 200% |
| 区画番号 | |
現況 |
空家 |
| 物件番号 |
3271 |
掲載期限日 |
2026/06/15 |
| 設備・条件 |
システムキッチン 追い焚き 洗髪洗面化粧台 バス・トイレ別 温水洗浄便座 TVドアホン |
神田小学校エリア 駐車2台 令和4年建物内外リフォーム済み 土地38.33坪 3LDK
- 価格
2,980万円
- 中古戸建
- 間取
3LDK
校区(神田小学校 西部中学校 )
|
- 所在地
|
- 高知県高知市 神田
|
- 交通
|
- とさでん交通市内線上町五丁目駅 徒歩35分
バス(吉野別バス 停歩3分) |
| 築年月 |
2003/03 |
構造 |
木造 |
| 階建 |
地上 2階 |
部屋階数 |
|
| 面積 |
103.21m² 土地 126.73m² |
建蔽率/容積率 |
60% / 200% |
| 区画番号 | |
現況 |
居住中 |
| 物件番号 |
3109 |
掲載期限日 |
2026/06/11 |
| 設備・条件 |
|
鴨田小学校エリア お庭あり 土地34.13坪 4LDK
- 価格
1,230万円
- 中古戸建
- 間取
4LDK
校区(鴨田小学校 西部中学校 )
|
- 所在地
|
- 高知県高知市 神田
|
- 交通
|
- とさでん交通伊野線鴨部駅 徒歩34分
バス(船岡団地バス 停歩4分) |
| 築年月 |
1996/06 |
構造 |
木造 |
| 階建 |
地上 2階 |
部屋階数 |
|
| 面積 |
85.09m² 土地 112.85m² |
建蔽率/容積率 |
60% / 200% |
| 区画番号 | |
現況 |
空家 |
| 物件番号 |
3246 |
掲載期限日 |
2026/06/09 |
| 設備・条件 |
|
朝倉第二小学校エリア 閑静な住宅地内 駐車2台 土地37.45坪 4LDK
- 価格
2,600万円
- 中古戸建
- 間取
4LDK
校区(朝倉第二小学校 朝倉中学校 )
|
- 所在地
|
- 高知県高知市 朝倉甲
|
- 交通
|
- とさでん交通伊野線鴨部駅 徒歩24分
バス(船岡団地バス 停歩3分) |
| 築年月 |
2007/08 |
構造 |
木造 |
| 階建 |
地上 2階 |
部屋階数 |
|
| 面積 |
110.96m² 土地 123.81m² |
建蔽率/容積率 |
60% / 200% |
| 区画番号 | |
現況 |
居住中 |
| 物件番号 |
3140 |
掲載期限日 |
2026/06/09 |
| 設備・条件 |
角地 IHコンロ バス・トイレ別 公営水道 排水浄化槽 |
鴨田小学校エリア 交通買い物便利な立地 土地30.55坪 3LDK
- 価格
2,680万円
- 中古戸建
- 間取
3LDK
校区(鴨田小学校 西部中学校 )
|
- 所在地
|
- 高知県高知市 鴨部
|
- 交通
|
- とさでん交通市内線旭町三丁目駅 徒歩15分
バス(鴨田小学校通西バス 停歩3分) |
| 築年月 |
2021/05 |
構造 |
木造 |
| 階建 |
地上 2階 |
部屋階数 |
|
| 面積 |
89.43m² 土地 101.00m² |
建蔽率/容積率 |
80% / 200% |
| 区画番号 | |
現況 |
居住中 |
| 物件番号 |
3053 |
掲載期限日 |
2026/06/04 |
| 設備・条件 |
食器洗い乾燥機 バス・トイレ別 温水洗浄便座 |
朝倉第二小学校エリア 造作ダイニングテーブル 駐車2台 土地59.42坪 4LDK
- 価格
3,980万円
- 中古戸建
- 間取
4LDK
校区(朝倉第二小学校 朝倉中学校 )
|
- 所在地
|
- 高知県高知市 若草南町
|
- 交通
|
- JR土讃線朝倉駅 徒歩22分
バス(西横町バス 停歩6分) |
| 築年月 |
1994/12 |
構造 |
木造 |
| 階建 |
地上 2階 |
部屋階数 |
|
| 面積 |
133.81m² 土地 196.42m² |
建蔽率/容積率 |
60% / 200% |
| 区画番号 | |
現況 |
居住中 |
| 物件番号 |
3002 |
掲載期限日 |
2026/05/16 |
| 設備・条件 |
IHコンロ システムキッチン 給湯 バス・トイレ別 温水洗浄便座 |
鴨田小学校エリア 駐車3台 土地49.98坪 4LDK
- 価格
--
- 中古戸建
- 間取
4LDK
校区(鴨田小学校 西部中学校 )
|
- 所在地
|
- 高知県高知市 神田
|
- 交通
|
- とさでん交通伊野線鴨部駅 徒歩32分
バス(船岡南団地バス 停歩4分) |
| 築年月 |
2011/03 |
構造 |
木造 |
| 階建 |
地上 2階 |
部屋階数 |
|
| 面積 |
105.16m² 土地 165.25m² |
駐車場 |
- 駐車場
- 空有
|
| 区画番号 | |
現況 |
空家 |
| 物件番号 |
3090 |
掲載期限日 |
2026/04/28 |
| 設備・条件 |
|
朝倉第二小学校エリア 土佐道路沿い 土地36.90坪 3LDK
- 価格
2,100万円
- 中古戸建
- 間取
3LDK
校区(朝倉第二小学校 朝倉中学校 )
|
- 所在地
|
- 高知県高知市 朝倉戊
|
- 交通
|
- JR土讃線朝倉駅 徒歩42分
バス(下針木バス 停歩3分) |
| 築年月 |
2017/06 |
構造 |
木造 |
| 階建 |
地上 2階 |
部屋階数 |
|
| 面積 |
73.28m² 土地 122m² |
建蔽率/容積率 |
60% / 200% |
| 区画番号 | |
現況 |
居住中 |
| 物件番号 |
3119 |
掲載期限日 |
2026/05/30 |
| 設備・条件 |
|
神田小学校エリア 前面道路6m 土地30.25坪 4LDK
- 価格
2,399万円
- 中古戸建
- 間取
4LDK
校区(神田小学校 西部中学校 )
|
- 所在地
|
- 高知県高知市 石立町
|
- 交通
|
- とさでん交通市内線上町五丁目駅 徒歩13分
バス(城山町バス 停歩4分) |
| 築年月 |
1989/05 |
構造 |
木造 |
| 階建 |
地上 2階 |
部屋階数 |
|
| 面積 |
89.25m² 土地 100.02m² |
建蔽率/容積率 |
60% / 200% |
| 区画番号 | |
現況 |
空家 |
| 物件番号 |
3198 |
掲載期限日 |
2026/05/13 |
| 設備・条件 |
|
朝倉第二小学校エリア 毎日屋土佐道路店徒歩5分 駐車2台可 土地68.75坪 4LDK
- 価格
1,980万円
- 中古戸建
- 間取
4LDK
校区(朝倉第二小学校 朝倉中学校 )
|
- 所在地
|
- 高知県高知市 大谷公園町
|
- 交通
|
- JR土讃線朝倉駅 徒歩31分
バス(大谷通バス 停歩3分) |
| 築年月 |
1992/09 |
構造 |
軽量鉄骨 |
| 階建 |
地上 2階 |
部屋階数 |
|
| 面積 |
124.12m² 土地 227.29m² |
建蔽率/容積率 |
60% / 160% |
| 区画番号 | |
現況 |
居住中 |
| 物件番号 |
3170 |
掲載期限日 |
2026/05/29 |
| 設備・条件 |
|
駐車3台 サンルーム ウッドデッキ 土地46.72坪 4LDK
- 価格
3,980万円
- 中古戸建
- 間取
4LDK
校区(神田小学校 西部中学校 )
|
- 所在地
|
- 高知県高知市 神田
|
- 交通
|
バス(とさでん交通吉野川橋バス 停歩2分) |
| 築年月 |
2022/10 |
構造 |
木造 |
| 階建 |
地上 2階 |
部屋階数 |
|
| 面積 |
101.76m² 土地 154.47m² |
建蔽率/容積率 |
60% / 200% |
| 区画番号 | |
現況 |
居住中 |
| 物件番号 |
3138 |
掲載期限日 |
2026/05/28 |
| 設備・条件 |
IHコンロ 三口コンロ システムキッチン 食器洗い乾燥機 給湯 追い焚き 洗髪洗面化粧台 浴室乾燥機 温水洗浄便座 W.INクローゼット 室内洗濯機置き場 オートロック TVドアホン フローリング オール電化 トイレ2ヶ所、オートバス、浴室暖房、浴室に窓、浴室1坪以上、グリル、浄水器、全居室収納、エアコン2台以上、シャッター、照明器具、火災報知器(報知器)、電気、上水道、下水道、側溝、省エネ給湯器、オール電化、太陽光発電システム、宅配BOX 売電収入 月約7000円 |
鴨田小学校エリア 南向き 閑静な住宅地 土地40.57 3LDK
- 価格
2,880万円
- 中古戸建
- 間取
3LDK
校区(鴨田小学校 西部中学校 )
|
- 所在地
|
- 高知県高知市 神田
|
- 交通
|
- とさでん交通伊野線鴨部駅 徒歩29分
バス(船岡南団地バス 停歩2分) |
| 築年月 |
2023/10 |
構造 |
木造 |
| 階建 |
地上 2階 |
部屋階数 |
|
| 面積 |
91.08m² 土地 134.13m² |
建蔽率/容積率 |
60% / 200% |
| 区画番号 | |
現況 |
空家 |
| 物件番号 |
0046 |
掲載期限日 |
2026/05/25 |
| 設備・条件 |
角地 IHコンロ システムキッチン 給湯 TVドアホン オール電化 耐震等級3 省令準耐火構造 |
神田小学校エリア 駐車2台(カーポート) 土地45.13坪 3LDK
- 価格
3,780万円
- 中古戸建
- 間取
3LDK
校区(神田小学校 西部中学校 )
|
- 所在地
|
- 高知県高知市 神田
|
- 交通
|
- とさでん交通市内線旭町一丁目駅 徒歩28分
バス(吉野川橋バス 停歩5分) |
| 築年月 |
2022/07 |
構造 |
木造 |
| 階建 |
地上 2階 |
部屋階数 |
|
| 面積 |
108.47m² 土地 149.20m² |
建蔽率/容積率 |
60% / 160% |
| 区画番号 | |
現況 |
居住中 |
| 物件番号 |
3004 |
掲載期限日 |
2026/05/15 |
| 設備・条件 |
IHコンロ カウンターキッチン バス・トイレ別 W.INクローゼット 公営水道 排水下水 オール電化 |
朝倉第二小学校エリア 駐車2台可 土地 29.52坪 3LDK
- 価格
2,480万円
- 中古戸建
- 間取
3LDK
校区(朝倉第二小学校 朝倉中学校 )
|
- 所在地
|
- 高知県高知市 針木東町
|
- 交通
|
- JR土讃線朝倉駅 徒歩34分
バス(針木バス 停歩5分) |
| 築年月 |
2021/02 |
構造 |
木造 |
| 階建 |
地上 2階 |
部屋階数 |
|
| 面積 |
89.02m² 土地 97.61m² |
建蔽率/容積率 |
60% / 200% |
| 区画番号 | |
現況 |
居住中 |
| 物件番号 |
3101 |
掲載期限日 |
2026/05/16 |
| 設備・条件 |
食器洗い乾燥機 洗髪洗面化粧台 バス・トイレ別 温水洗浄便座 W.INクローゼット TVドアホン プロパンガス 公営水道 排水浄化槽 |
朝倉第二小学校エリア 店舗付き 土地124.5坪 5LDK
- 価格
5,300万円
- 中古戸建
- 間取
5LDK
校区(朝倉第二小学校 朝倉中学校 )
|
- 所在地
|
- 高知県高知市 若草南町
|
- 交通
|
- JR土讃線朝倉駅 徒歩25分
バス(海老槙バス 停歩2分) |
| 築年月 |
2007/08 |
構造 |
軽量鉄骨 |
| 階建 |
地上 2階 |
部屋階数 |
|
| 面積 |
169.87m² 土地 411.59m² |
建蔽率/容積率 |
60% / 200% |
| 区画番号 | |
現況 |
居住中 |
| 物件番号 |
3031 |
掲載期限日 |
2026/05/16 |
| 設備・条件 |
|
朝倉第二小学校エリア リフォーム住宅 駐車2台可 土地44.92坪 3LDK
- 価格
1,999万円
- 中古戸建
- 間取
3LDK
校区(朝倉第二小学校 朝倉中学校 )
|
- 所在地
|
- 高知県高知市 若草町
|
- 交通
|
- JR土讃線朝倉駅 徒歩16分
バス(看護学校前バス 停歩8分) |
| 築年月 |
1979/09 |
構造 |
軽量鉄骨 |
| 階建 |
地上 2階 |
部屋階数 |
|
| 面積 |
97.31m² 土地 148.52m² |
建蔽率/容積率 |
60% / 160% |
| 区画番号 | |
現況 |
空家 |
| 物件番号 |
3242 |
掲載期限日 |
2026/05/13 |
| 設備・条件 |
|
築浅物件 書斎あります 土地51.91坪 3LDK
- 価格
3,980万円
- 中古戸建
- 間取
3LDK
校区(神田小学校 西部中学校 )
|
- 所在地
|
- 高知県高知市 石立町
|
- 交通
|
- とさでん交通市内線上町五丁目駅 徒歩11分
バス(石立団地バス 停歩5分) |
| 築年月 |
2023/03 |
構造 |
木造 |
| 階建 |
地上 2階 |
部屋階数 |
|
| 面積 |
105.15m² 土地 171.63m² |
駐車場 |
|
| 区画番号 | |
現況 |
居住中 |
| 物件番号 |
3210 |
掲載期限日 |
2026/05/13 |
| 設備・条件 |
|
鴨田小学校エリア 平屋に興味がある方 土地202.67坪 4LDK
- 価格
2,980万円
- 中古戸建
- 間取
4LDK
校区(鴨田小学校 西部中学校 )
|
- 所在地
|
- 高知県高知市 神田
|
- 交通
|
- とさでん交通伊野線鴨部駅 徒歩26分
バス(藤和橋バス 停歩1分) |
| 築年月 |
1987/02 |
構造 |
木造 |
| 階建 |
地上 1階 |
部屋階数 |
|
| 面積 |
153.01m² 土地 670m² |
建蔽率/容積率 |
60% / 200% |
| 区画番号 | |
現況 |
居住中 |
| 物件番号 |
3192 |
掲載期限日 |
2026/05/13 |
| 設備・条件 |
|