☆高知インター通りまで近くアクセス良し
☆公園やスーパー、コンビニ、ドラッグストアが徒歩圏内にあります
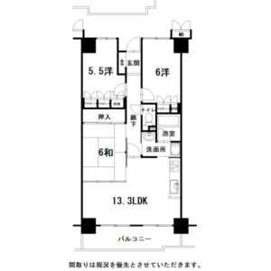
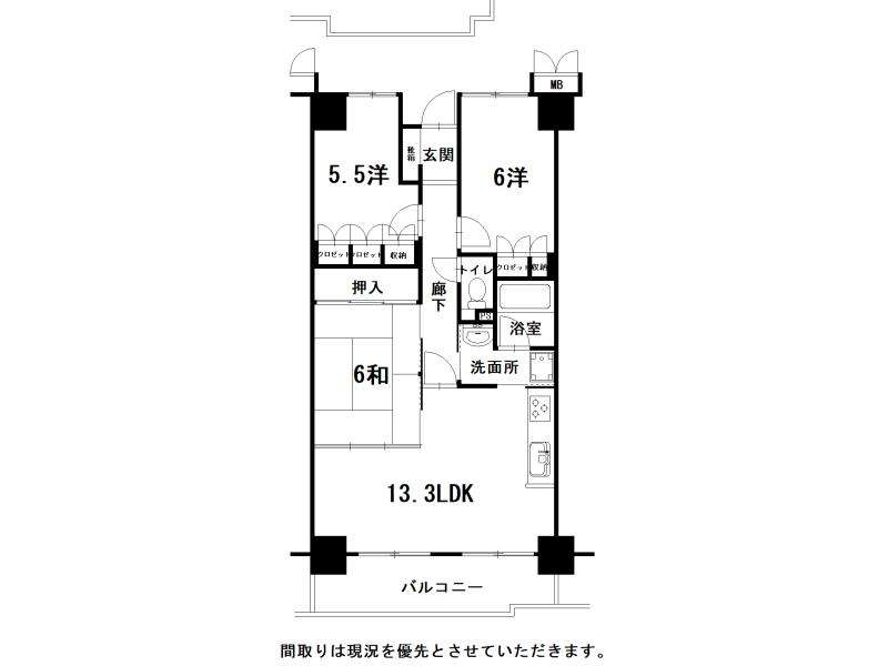
☆ご家族の集まるLDKは南向きで陽当り良好です
☆現地のご見学や資料請求、住宅ローンのことなどお気軽にご相談ください!(^^)!
☆専有面積69.05㎡(20.88坪)
☆6和・5.5洋・6洋・13.3LDK
サーパス北本町第2 5階部分 【江陽小学校まで徒歩4分】new
- 価格
- 1,580万円
- 中古マンション
- 間取
- 3LDK
- 共益費・管理費
- 6,900円
- 修繕積立金
- 11,700円
|
|
| 所在地 | 高知県高知市北本町2丁目 |
|---|---|
| 交通 | JR土讃線高知駅 徒歩15分 バス(太田川橋バス 停歩2分) |
| 築年月 | 1996/2 | 新築/中古 | 中古 |
|---|---|---|---|
| 面積 | 69.05m² | 計測方式 | 壁芯 |
| バルコニー | 8.95m² | 向き | 南 |
| 建物階数 | 地上11階 | 部屋階数 | 5階 |
| 建物構造 | RC | ||
| 管理形態 | 全部委託 管理人日勤 | ||
| 間取内容 |
6和・5.5洋・6洋・13.3LDK |
||
| 住宅保険料 | 要 | 修繕積立金 | 11,700円 |
| 駐車場 | 9,000円 空有 | 取引態様 | 仲介 |
| 引渡/入居時期 | 相談 | 現況 | 空家 |
| 地目 | 用途地域 | 準工業 | |
| 都市計画 | 市街化区域 | 地勢 | 平坦 |
| 周辺環境 |
校区(江陽小学校 城東中学校 )
コンビニ220m/よどやドラッグ南金田店500m/サンシャインクレア店550m/高知比島郵便局650m/ |
||
| 設備・条件 | システムキッチン 洗髪洗面化粧台 バス・トイレ別 温水洗浄便座 TVドアホン | ||
| 物件番号 | 4074 | 掲載期限日 | 2026/06/03 |
| 特記事項 | 2026/03/01 | ||
Loading...
※物件掲載内容と現況に相違がある場合は現況を優先と致します。
お問い合せ先
コーチ不動産
〒780-0021 高知県高知市中秦泉寺129-1
TEL 088-855-8706 FAX 088-855-8707

営業時間 :AM9:00~PM6:00 定休日 :水曜日
※お電話はPM7:30まで
宅建免許番号:高知県知事 (2) 第2932号




























