☆北環状線沿い
☆見晴らしの良い屋上あり
☆駐車5~6台可!お庭もあります♪
☆現地のご見学や資料請求などお気軽にご相談ください!(^^)!
☆土地 258.23㎡(78.11坪) 建物 247.84㎡(74.97坪)
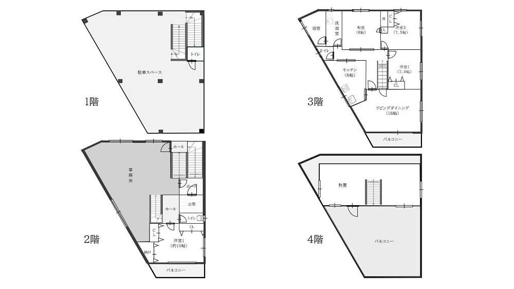
☆1階 駐車スペース / 2階 10洋・事務所 / 3階 8和・7洋・7.5洋・18LD・8K / 4階 物置
高知市薊野西町1丁目 事務所付き住宅 【北環状線沿い】new
- 価格
- 6,500万円
- 店舗付住宅
- 間取
- 4LDK
|
|
| 所在地 | 高知県高知市薊野西町1丁目 |
|---|---|
| 交通 | JR土讃線薊野駅 徒歩18分 バス(東谷川橋東バス 停歩1分) |
| 築年月 | 1997/02 | 新築/中古 | 中古 |
|---|---|---|---|
| 面積 | 247.84m² | 計測方式 | |
| バルコニー | 向き | ||
| 建物階数 | 地上4階 | 部屋階数 | |
| 建物構造 | 鉄骨造 | ||
| 間取内容 |
1階 駐車スペース / 2階 10洋・事務所 / 3階 8和・7洋・7.5洋・18LD・8K / 4階 物置 |
||
| 駐車場 | 5~6台可 | 取引態様 | 仲介 |
| 引渡/入居時期 | 相談 | 現況 | 空家 |
| 地目 | 宅地 | 用途地域 | 近隣商業 |
| 都市計画 | 市街化区域 | 地勢 | 平坦 |
| 土地面積 | 258.23m² | 土地面積計測方式 | 公簿 |
| 建ぺい率 | 60% | 容積率 | 200% |
| 土地権利 | 所有権 | 接道状況 | 一方 |
| 接道方向1 | 北 | 接道間口1 | |
| 接道方向2 | 南西 | 接道間口2 | |
| 周辺環境 |
校区(泉野小学校 一宮中学校 )
ドラッグストアコスモス90m/ハマート薊野店260m/サニーマートあぞの店450m/イオンモール高知650m/ |
||
| 設備・条件 | |||
| 物件番号 | 3231 | 掲載期限日 | 2026/05/17 |
| 特記事項 | 2026/02/13 | ||
Loading...
※物件掲載内容と現況に相違がある場合は現況を優先と致します。
お問い合せ先
コーチ不動産
〒780-0021 高知県高知市中秦泉寺129-1
TEL 088-855-8706 FAX 088-855-8707

営業時間 :AM9:00~PM6:00 定休日 :水曜日
※お電話はPM7:30まで
宅建免許番号:高知県知事 (2) 第2932号






















