☆高知市中心エリアの新築物件!
☆帯屋町商店街まで徒歩7分
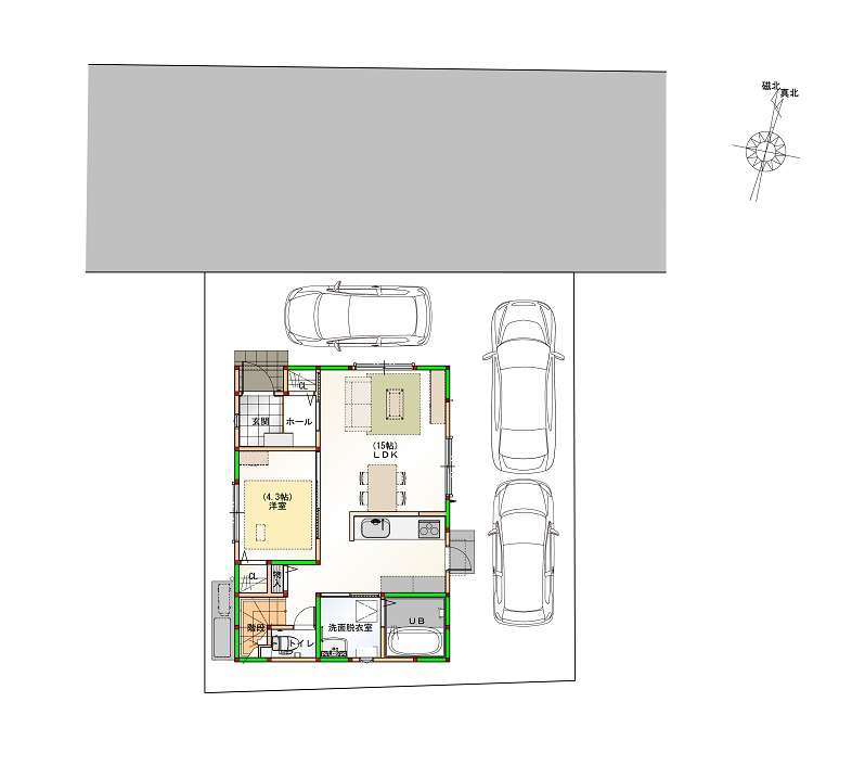
☆1階の洋室はキッズスペースやゲストルームとしても◎
☆お車は3台駐車可
☆現地のご見学や資料請求、住宅ローンのことなどお気軽にご相談ください!(^^)!
☆土地 120.64㎡(36.49坪) 建物 95.90㎡(29坪)
☆1階 4.3洋・15LDK / 2階 5.3洋・6.7洋・6.8洋
高知市与力町 新築住宅 【太陽光発電6.6KW搭載】
- 価格
- 3,498万円
- 新築戸建
- 間取
- 4LDK
|
|
| 所在地 | 高知県高知市与力町 |
|---|---|
| 交通 | とさでん交通市内線堀詰駅 徒歩5分 バス(堀詰バス 停歩5分) |
| 築年月 | 2026/04 | 新築/中古 | 新築・未入居 |
|---|---|---|---|
| 面積 | 95.90m² | 計測方式 | |
| バルコニー | 向き | ||
| 建物階数 | 地上2階 | 部屋階数 | |
| 建物構造 | 木造 | ||
| 間取内容 |
1階 4.3洋・15LDK / 2階 5.3洋・6.7洋・6.8洋 |
||
| 駐車場 | 3台可 | 取引態様 | 仲介 |
| 引渡/入居時期 | 相談 | 現況 | 未完成 |
| 地目 | 宅地 | 用途地域 | 商業 |
| 都市計画 | 市街化区域 | 地勢 | 平坦 |
| 土地面積 | 120.64m² | 土地面積計測方式 | 公簿 |
| 建ぺい率 | 80% | 容積率 | 341% |
| 土地権利 | 所有権 | 接道状況 | 一方 |
| 接道方向1 | 北 | 接道間口1 | 10.3m |
| 接道種別1 | 公道 | 接道幅員1 | 5.6m |
| 周辺環境 |
校区(はりまや橋小学校 城北中学校 )
丸の内保育園400m/毎日屋大橋通店630m/オーテピア高知図書館630m/ |
||
| 設備・条件 | IHコンロ システムキッチン 食器洗い乾燥機 洗髪洗面化粧台 浴室乾燥機 バス・トイレ別 温水洗浄便座 TVドアホン オール電化 | ||
| 物件番号 | 0006 | 掲載期限日 | 2026/02/09 |
| 特記事項 | 2025/11/09 参考支払い例 金利1.05% 10年固定 35年払い 保証料別途 月々約99700円 |
||
※物件掲載内容と現況に相違がある場合は現況を優先と致します。
お問い合せ先
コーチ不動産
〒780-0021 高知県高知市中秦泉寺129-1
TEL 088-855-8706 FAX 088-855-8707

営業時間 :AM9:00~PM6:00 定休日 :水曜日
※お電話はPM7:30まで
宅建免許番号:高知県知事 (2) 第2932号





















