☆野市東小学校まで徒歩12分
☆閑静な住宅地内
☆駐車2台可(カーポート付き)
☆広いベランダがあります
☆現地のご見学や資料請求、住宅ローンのことなどお気軽にご相談ください!(^^)!
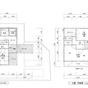
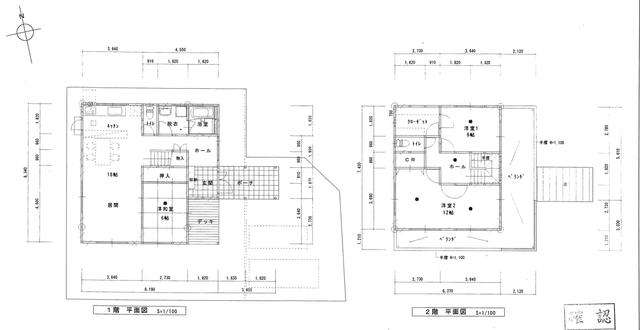
☆土地 255.13㎡(77.17坪) 建物 110.65㎡(33.47坪)
☆1階 18LDK・6和 / 2階 6洋・12洋
香南市野市町土居 戸建住宅 【太陽光発電システム付き住宅】
- 価格
- 1,780万円
- 中古戸建
- 間取
- 3LDK
|
|
| 所在地 | 高知県香南市野市町土居 |
|---|---|
| 交通 | 土佐くろしおごめん・なはり線よしかわ駅 徒歩27分 |
| 築年月 | 2011/04 | 新築/中古 | 中古 |
|---|---|---|---|
| 面積 | 110.65m² | 計測方式 | |
| バルコニー | 向き | 南 | |
| 建物階数 | 地上2階 | 部屋階数 | |
| 建物構造 | 木造 | ||
| 間取内容 |
1階 18LDK・6和 / 2階 6洋・12洋 |
||
| 駐車場 | 空有 | 取引態様 | 仲介 |
| 引渡/入居時期 | 相談 | 現況 | 空家 |
| 地目 | 宅地 | 用途地域 | 無指定 |
| 都市計画 | 非線引き区域 | 地勢 | 平坦 |
| 土地面積 | 255.13m² | 土地面積計測方式 | 公簿 |
| 建ぺい率 | 60% | 容積率 | 200% |
| 土地権利 | 所有権 | 接道状況 | 一方 |
| 接道方向1 | 東 | 接道間口1 | |
| 接道種別1 | 私道 | 接道幅員1 | |
| 周辺環境 |
校区(野市東小学校 野市中学校 )
野市中央病院650m/中野村郵便局650m/セブンイレブンのいち店1000m/エーマックス赤岡店1400m/ |
||
| 設備・条件 | IHコンロ 洗髪洗面化粧台 プロパンガス トイレ2ヶ所、エアコン2台以上、照明器具、電気、上水道、下水道、太陽光発電システム |
||
| 物件番号 | 3033 | 掲載期限日 | 2026/02/20 |
| 特記事項 | 2025/11/20 参考支払い例 金利1.05% 10年固定 35年払い 保証料別途 月々約51,300円 |
||
Loading...
※物件掲載内容と現況に相違がある場合は現況を優先と致します。
お問い合せ先
コーチ不動産
〒780-0021 高知県高知市中秦泉寺129-1
TEL 088-855-8706 FAX 088-855-8707

営業時間 :AM9:00~PM6:00 定休日 :水曜日
※お電話はPM7:30まで
宅建免許番号:高知県知事 (2) 第2932号

















