☆蛍橋電停から徒歩5分の住宅地内
☆母屋はメーターモジュール設計の上下2世帯住宅
☆1DKの離れは2020年ごろにリフォーム済みです
☆バス停、電停、JR旭駅に近く通勤通学に便利な立地
☆現地のご見学や資料請求、住宅ローンのことなどお気軽にご相談ください!(^^)!
☆土地 185.4㎡(56.08坪) 建物 112㎡(33.88坪)+39.32㎡(11.89坪)
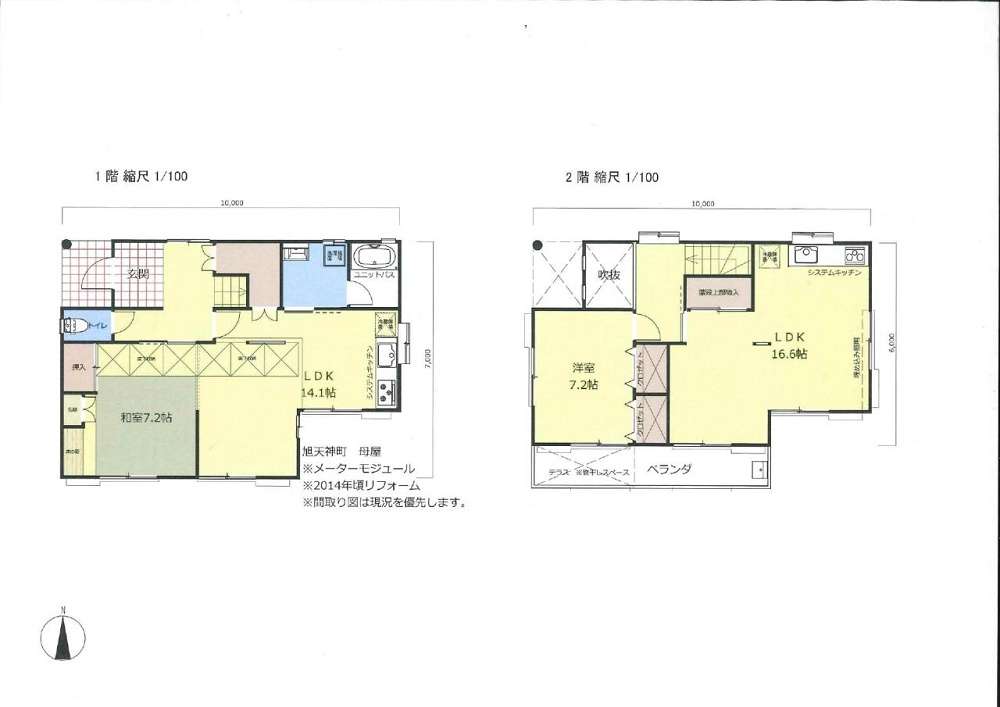
☆1階 7.2和・14.1LDK / 2階 7.2洋・16.6LDK
☆1階 9洋・8DK(離れ)
高知市旭天神町 戸建住宅 【3世帯で暮らせる5LDK】new
- 価格
- 2,380万円
- 中古戸建
- 間取
- 5LDK
|
|
| 所在地 | 高知県高知市旭天神町 |
|---|---|
| 交通 | JR土讃線円行寺口駅 徒歩9分 バス(蛍橋バス 停歩5分) |
| 築年月 | 1988/10 | 新築/中古 | |
|---|---|---|---|
| 面積 | 112m² | 計測方式 | |
| バルコニー | 向き | ||
| 建物階数 | 地上2階 | 部屋階数 | |
| 建物構造 | 木造 | ||
| 間取内容 |
1階 7.2和・14.1LDK / 2階 7.2洋・16.6LDK / 離れ1階 9洋・8DK |
||
| 駐車場 | 取引態様 | 仲介 | |
| 引渡/入居時期 | 相談 | 現況 | 居住中 |
| 地目 | 宅地 | 用途地域 | 第一種中高層住居専用 |
| 都市計画 | 市街化区域 | 地勢 | 平坦 |
| 土地面積 | 185.4m² | 土地面積計測方式 | |
| 建ぺい率 | 60% | 容積率 | 160% |
| 土地権利 | 所有権 | 接道状況 | |
| 周辺環境 |
校区(旭東小学校 城西中学校 )
ポッポ保育園160m/コンビニ350m/サニーマート山手店1200m/ |
||
| 設備・条件 | |||
| 物件番号 | 3294 | 掲載期限日 | 2026/05/25 |
| 特記事項 | 2026/02/17 参考支払い例 金利1.05% 10年固定 35年払い 保証料別途 月々約68400円 |
||
Loading...
※物件掲載内容と現況に相違がある場合は現況を優先と致します。
お問い合せ先
コーチ不動産
〒780-0021 高知県高知市中秦泉寺129-1
TEL 088-855-8706 FAX 088-855-8707

営業時間 :AM9:00~PM6:00 定休日 :水曜日
※お電話はPM7:30まで
宅建免許番号:高知県知事 (2) 第2932号































