☆JR円行寺口駅から徒歩8分
☆コミュニケーションが取りやすい開放的な空間を演出できるⅡ型キッチン
☆長期優良住宅(耐震等級3・断熱等級5)
☆現地のご見学や資料請求、住宅ローンのことなどお気軽にご相談ください!(^^)!
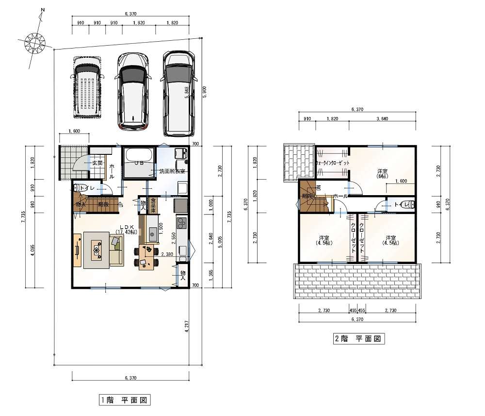
☆土地 141.19㎡(42.71坪) 建物 86.53㎡(26.17坪)
☆1階 17.4LDK / 2階 4.5洋・4.5洋・6洋
高知市南万々 新築住宅 【駐車3台可/お庭もあります】new
- 価格
- 4,180万円
- 中古戸建
- 間取
- 3LDK
|
|
| 所在地 | 高知県高知市南万々 |
|---|---|
| 交通 | JR土讃線円行寺口駅 徒歩8分 バス(円行寺分岐 停歩6分) |
| 築年月 | 2026/09 | 新築/中古 | 新築・未入居 |
|---|---|---|---|
| 面積 | 86.53m² | 計測方式 | |
| バルコニー | 向き | ||
| 建物階数 | 地上2階 | 部屋階数 | |
| 建物構造 | 木造 | ||
| 間取内容 |
1階 17.4LDK / 2階 4.5洋・4.5洋・6洋 |
||
| 駐車場 | 3台可 | 取引態様 | 仲介 |
| 引渡/入居時期 | 相談 | 現況 | 賃貸中 |
| 地目 | 宅地 | 用途地域 | 第一種中高層住居専用 |
| 都市計画 | 市街化区域 | 地勢 | 平坦 |
| 土地面積 | 141.19m² | 土地面積計測方式 | 公簿 |
| 建ぺい率 | 60% | 容積率 | 160% |
| 土地権利 | 所有権 | 接道状況 | 角地 |
| 接道方向1 | 北 | 接道間口1 | 7.9m |
| 接道種別1 | 公道 | 接道幅員1 | 4m |
| 接道方向2 | 西 | 接道間口2 | 16.6m |
| 接道種別2 | 接道幅員2 | 4m | |
| 周辺環境 |
校区(小高坂小学校 城西中学校 )
コンビニ500m/小高坂保育園700m/TSUTAYA中万々店720m/サニーマート中万々店750m/ |
||
| 設備・条件 | IHコンロ システムキッチン 食器洗い乾燥機 洗髪洗面化粧台 バス・トイレ別 温水洗浄便座 W.INクローゼット 公営水道 排水下水 エコジョーズ(指定ガス業者のキャンペーン対象商品)・乾太くん(指定ガス業者のキャンペーン対象商品) |
||
| 物件番号 | 0031 | 掲載期限日 | 2026/06/03 |
| 特記事項 | 2026/02/28 参考支払い例 金利1.05% 10年固定 35年払い 保証料別途 月々約119600円 |
||
Loading...
※物件掲載内容と現況に相違がある場合は現況を優先と致します。
お問い合せ先
コーチ不動産
〒780-0021 高知県高知市中秦泉寺129-1
TEL 088-855-8706 FAX 088-855-8707

営業時間 :AM9:00~PM6:00 定休日 :水曜日
※お電話はPM7:30まで
宅建免許番号:高知県知事 (2) 第2932号









