☆人気の卸団地エリア
☆コンビニ、スーパー、ホームセンター、飲食店などが近く便利
☆現地のご見学や資料請求、住宅ローンのことなどお気軽にご相談ください!(^^)!
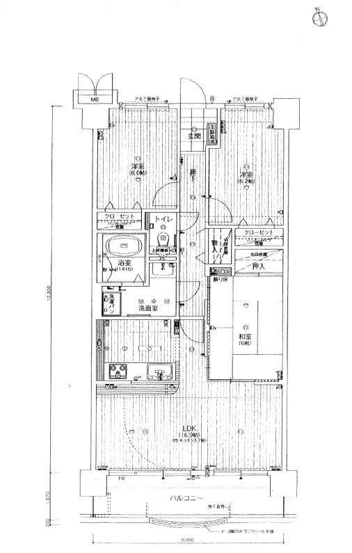
☆専有面積78.72㎡(23.81坪)
☆6洋・6洋・6.2洋・16.9LDK
サントノーレ北御座 1階部分 【おしゃれ街 ゛卸団地エリア゛】
- 価格
- 1,990万円
- 中古マンション
- 間取
- 3LDK
- 共益費・管理費
- 7,500円
- 修繕積立金
- 3,600円
|
|
| 所在地 | 高知県高知市北御座 |
|---|---|
| 交通 | JR土讃線高知駅 徒歩24分 バス(北御座バス 停歩3分) |
| 築年月 | 2007/10 | 新築/中古 | 中古 |
|---|---|---|---|
| 面積 | 78.72m² | 計測方式 | 壁芯 |
| バルコニー | 向き | ||
| 建物階数 | 地上11階 | 部屋階数 | 1階 |
| 建物構造 | RC | ||
| 管理形態 | 全部委託 管理人日勤 管理組合有 | ||
| 間取内容 |
6洋・6洋・6.2洋・16.9LDK |
||
| 住宅保険料 | 要 | 修繕積立金 | 3,600円 |
| 駐車場 | 4,500円 空有 | 取引態様 | 仲介 |
| 引渡/入居時期 | 相談 | 現況 | 居住中 |
| 周辺環境 |
校区(江陽小学校 城東中学校 )
コンビニ40m/ドラッグセイムス御座店70m/ファーマーズマーケットとさのさと130m/DCMダイキ御座店190m/高知蔦屋書店250m/ |
||
| 設備・条件 | システムキッチン 浴室乾燥機 バス・トイレ別 温水洗浄便座 オートロック TVドアホン エレベータ 宅配ボックス 駐輪場 | ||
| 物件番号 | 4146 | 掲載期限日 | 2026/05/13 |
| 特記事項 | 2026/02/09 | ||
Loading...
※物件掲載内容と現況に相違がある場合は現況を優先と致します。
お問い合せ先
コーチ不動産
〒780-0021 高知県高知市中秦泉寺129-1
TEL 088-855-8706 FAX 088-855-8707

営業時間 :AM9:00~PM6:00 定休日 :水曜日
※お電話はPM7:30まで
宅建免許番号:高知県知事 (2) 第2932号















